关于南校园施工封闭的通知
作者: 发布日期:2012-07-30
关于南校园施工封闭的通知
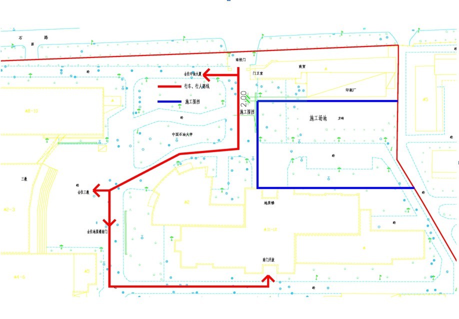
根据学校基建计划,在暑期实施逸夫楼施工场地范围内管线改造工作,施工场地范围四至:东至东围墙、南至地质楼北门、西至南校园大门东南侧绿化带边线、北至商贸。为保障广大师生、教职员工安全,同时为保证施工安全和工程进度,施工场地将临时封闭,于2012年7月27日搭建施工场地临时围挡,届时地质楼北门、南校园大门门卫室南侧绿化带以东将封闭,出入地质楼请绕行南门。施工期间由此带来的不便敬请谅解。
附图:施工场地围挡示意
基建处
保卫处
2012年7月25日